
2021年,国务院办公厅印发了《关于加快发展保障性租赁住房的意见》,提出加快完善以公租房、保障性租赁住房和共有产权住房为主体的住房保障体系,明确了保障性租赁住房基础制度和支持政策,要求以习近平新时代中国特色社会主义思想为指导,坚持房子是用来住的、不是用来炒的定位。
保障性租赁住房作为民生领域的重要一环,市场需求日益增长,成为缓解城市居住压力的有效手段和重要途径,引发了各方的普遍关注。
保障性租赁住房作为城市住房保障体系中的重要组成部分,以保障功能为主,用于缓解新市民、特别是青年人的住房困难。
【供应方式】

【主要特点】
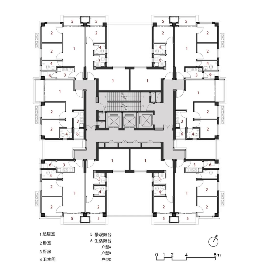
1.户型小,房型正
保障性租赁住房,以建筑面积不超过70㎡的中小户型为主,应不低于项目总房源的 70%。适当配置三居室等大户型,满足二孩、三孩家庭需求。
保障性租赁住房,应以南北朝向为主,应保证 50%以上套型至少有一个居室的冬至日(全年日照最短的一天)满窗日照有效时间不少于连续1小时。
本文精选了6个优秀的租保障性租赁住房项目案例,和大家一起鉴赏~
01.
百子湾公租房
由马岩松带领的MAD建筑事务所发布首个社会保障性住房——百子湾公租房(燕保·百湾家园)。项目位于北京市东四环外广渠路,紧邻地铁7号线化工站,遥望CBD。项目占地9.39万平米,总建筑面积47.33万平方米,共有12栋住宅楼,总住户达4000户。
打开社区围墙,引入城市道路。12栋住宅楼分成六个组团,一个大地块被拆分成六个小街区。首层临街空间作为生活服务配套,将引入便利店、咖啡店、餐厅、幼儿园、便民诊所、书店、养老机构等一系列丰富的功能,社区生活融入城市,城市尺度更加宜人。



▲社区街角的超市
首层功能还给城市后,MAD将二层留给社区居民内部使用,形成一系列立体的屋顶绿化,一条环形跑步道将六个街区再重新环抱成一个整体,变成一个巨大的公园,串联着健身房、羽毛球场、儿童游乐场、生态农场、社区服务中心等多种面向住户的社区功能。
▲空中健身房
▲二层环形跑跑步道
除了二层“飘浮”公园外,MAD在首层、建筑各个错层、半开放灰空间以及屋顶都留有不同尺度的景观,在城市中心较高密度的保障性住房的设计中,也保证绿化率达到47%,让在这里居住的人们能享受更舒适的生活,更加贴近自然。
▲垂直绿化
▲红色跑道串联六个街区,多个廊桥连接飘层公园
▲二层平台上郁郁葱葱的绿化环境
漂浮总部位于成都麓湖生态城的北部湖岸半岛,由十一座独栋办公楼宇和它们围合出的三个院子构成。在这个项目中,我们希望用空间的方式向人们发出邀请,让更多的自然与公共空间为高密度办公建筑及它所承载的生活方式带来新的可能。



百子湾公租房主要有40平方米、50平方米、60平方米三种面积的六种装配式户型、四种超低能耗户型。室内采用轻质涂装板作为分隔墙体,便于检修,也为之后装修改造提供便利。
▲百子湾公租房总平面图
▲轴测图
▲首层空间预留多功能配套设施空间
▲拥有社区内最大绿化面积的二层平台、屋顶绿化
▲建筑和室内装修采用装配式体系
▲A1户型开敞方案轴测示意
▲E户型开敞方案轴测示意
▲Y1户型开敞方案轴测示意
▲Y2户型开敞方案轴测示意
类型:社会保障性住房
总建筑面积:473,346平方米
地上建筑面积:303,351平方米
地下建筑面积:169,995平方米
主持合伙人:马岩松, 党群, 早野洋介
主持副合伙人:刘会英, 傅昌瑞
业主:北京市保障性住房建设投资中心
施工图设计:北京市建筑设计研究院有限公司
景观设计:泛亚景观设计(上海)有限公司
结构顾问:悉地国际设计顾问有限公司
一标段施工单位:北京住总集团有限责任公司
二标段施工单位:北京建工集团有限责任公司
监理单位:北京英诺威建设工程管理有限公司
02.
上海五里桥路公租房项目

项目以公租房为主体,另外包括黄浦区公租房管理中心、应急中心等管理用房,以及商业服务配套,面积共为6000平方米左右。地块同时还需额外提供150个社会车位,这些都给规划设计带来了极大挑战。
△ 体块生成
△ 功能分析
设计构建出两个公共平台来连接三幢建筑,与建筑内院共同组成公租房住户交流活动的主要公共空间,并通过大台阶向一层开放。公共平台与每个内院的连接处均布置有公租房配套服务设施,如洗衣、阅览、健身房等空间;平台与相对私密的内院间设有门禁系统,既不影响视线的通透,同时又能将平台与内院在空间上融为一体。


建筑形体干净利落,立面采用了高度统一的建筑语汇,高层与裙房既有变化又相互呼应,简洁现代且极具韵律感,力图与周边城市立面肌理相融合,同时也不失个性。


△ 总平面图 ?上海中房建筑设计有限公司
△ 一层平面图 ?上海中房建筑设计有限公司
△ 三层平面图 ?上海中房建筑设计有限公司

摄影:黎伟

项目坐落在丰台区成寿寺区域,位于南三环路方庄桥西南角,是沿三环自东向西进入丰台区的门户节点。项目周边城市环境较成熟,但界面相对凌乱,建筑以织补城市空间为原则,守齐城市界面,形成连续、围合的空间关系,以积极、和谐的姿态嵌入城市空间之中。
项目的目标客群是青年人被定位为。他们渴望被尊重,并亟须安定、从容的居住感受,同时他们乐于社交,对安全性、功能配套、空间审美有自己特殊的要求。同时,作为方庄地区的一个重要空间节点,项目的服务人群不仅仅是租住对象,建筑同样应当为所在区域提供一个大家都可受用的积极的公共场所,甚至作为一个触媒激发区域活力。
总平面
作为居住类项目,空调室外机的处理是立面设计中的关键问题。建筑利用公寓开间重复单元的特征,将飘窗和空调机位组合交错设计,塑造肌理化、错动、有序的表皮,以区别于传统居住社区形象,呈现严整而生动的界面以面对三环。



考虑到项目的特定客群,并为带动区域活力,设计有意增加了配套,在首层、二层及地下一层均设置了商业区域,并且将其与住户归家流线结合,在盘活商业的同时,也最大限度为住户提供了居住的便利。工作了一天的住户可在归家途中买个面包,喝个咖啡,或者休憩、看书,真正将居住半径扩大到整个社区,也形成居住和商业业态正向循环的生态链。

城市客厅室内
城市客厅室内


标准层平面
项目名称 | 成寿寺集体土地租赁住房
业 主 | 北京金城源投资管理公司,北京万科
建设地点 | 北京市丰台区
设计单位 | 中国建筑设计研究院有限公司
用地面积 | 1.125 h㎡
建筑面积 | 4.75万 ㎡
结构形式 | 混凝土框架剪力墙结构
主要材料 | 保温装饰复合一体板,玻璃幕墙
建筑层数 | 24层
室内设计 | 北京九和空间设计有限公司
图纸版权 | 中国建筑设计研究院有限公司
摄 影 | 刘晶
本项目为湛江市重点民生工程之一,旨在满足中低层收入社会劳动者(如清洁工、公交司机等)的居住需求,为其提供高品质的公共租赁住房,以提升劳动者幸福感,体现社会公平性。
本项目作为住建部和广东省住建厅钢结构装配式住宅的重要试点工程之一,并非采用传统钢筋混凝土结构,而是采用钢结构+装配式预制构件的形式。
套型设计遵循定型化、系列化原则,采用标准化套型设计,大开间结构布置的方式,满足套内空间布置的灵活性、可变性,同时满足标准化、模块化、系列化及可组合的要求。
建筑立面设计符合湛江市气候特征条件,采用标准化与多样性相结合的方法,采用保温隔热性能良好的一体化墙板及配套的饰面材料,满足耐久性要求。外墙板、外门窗、阳台板、幕墙、空调板、遮阳设施及装饰等通用部品部件采用标准化设计,建筑立面形状规则、均匀,风格简洁现代。
△ 简洁现代的立面

△ 裙房商业与配套设施
为了满足小户型产品与钢构体系的适应性,设计根据建筑使用功能需求、结构安全性指标(例如层间位移角和舒适度等)以及经济性指标,经过平面方案比选,选用点式平面方案。点式平面的优点在于其外轮廓方正完整,凹凸变化少,有利于结构支撑的布置。
△ 方正规整的标准层平面

△ 功能复杂程度与居住人数的多样化组合
△ 灵活变化的空间模式
室内空间实景 ▽




设计图纸 ▽
△ 总平面图 ?元本体
△ 剖面图 ?元本体
项目地点:广东省湛江市赤坎区东盛路南侧
EPC单位:中建科工集团有限公司
设计单位:深圳大学建筑设计研究院元本体工作室
主创建筑师:蔡瑞定、马越
建筑团队:蔡瑞定、马越、姚远、李程、陈恒生、陈景文、何伟勇
业主:湛江市住房和城乡建设局
室内:立木设计研究室有限公司、中建科工集团有限公司、浙江亚厦装饰股份有限公司、深圳大学建筑设计研究院元本体工作室
景观:深圳地道国际设计顾问有限公司
摄影:吴清山、中建科工、立木设计






项目名称丨杨浦区长白新村228街坊租赁住房及城市更新
业主单位丨上海创寓科技发展有限公司
项目地点丨东至安图路,西至敦化路,南至长白路,北至延吉东路
总建筑面积丨约43960平方米(其中地上建筑面积28760,地下建筑面积约15200平方米)
建筑设计丨日清设计
呈现时间|2023年5月
项目总负责丨赵晶鑫 刘晓理
项目团队丨方异辰 程建雄 陈良鹏 邵诗晨 汪丽霞 李哲翔 杨国栋 关林欢 袁小川 陈琪
项目摄影丨李逸
0人已收藏
2人已打赏
免费4人已点赞
分享
居住建筑设计
返回版块28.73 万条内容 · 415 人订阅
阅读下一篇
有灵魂的极简公寓,才有格调!" " 146㎡公寓 | Bezmirno Architects _________________________________________ 这间公寓是Bezmirno Architects的新作,面积为146㎡,设计师在设计时使用了多种天然材料与色调融合,利用充足的光线打造明亮的视觉效果,和谐的色调,使得整个空间呈现出大气而优雅的美感,原木元素的加入使空间更具自然氛围。
回帖成功
经验值 +10
全部回复(1 )
只看楼主 我来说两句 抢板凳谢谢楼主分享
回复 举报