【WEcity导读】当下的城市精细化管理、全过程工程咨询、国土空间规划、城市更新背景下,越来越多要求一张蓝图干到底,以“总图”统筹兼顾空间、管控项目流程中重要因素。因此,总图设计与总图管理贯穿项目全生命周期各个阶段,不仅仅停留在建筑总图,更要立足区域层面和在城市视角,从建筑总图走向城市总图,从总图成果走向总图思维。

总图设计是一门政策性、系统性、综合性很强的学科,涉及的知识面非常广,跟城市规划专业一样有‘上知天文、下知地理’的美誉。与规划不同的点在于总图设计往往依附于建筑方案设计,出现在建设实施阶段。往往忽略了规划阶段总图设计的重要性,导致规划与建筑总是脱节。
“一张蓝图”解决的是规划阶段空间上矛盾与冲突,而在项目建设阶段,只有在项目报批报建时才能发现与周边边界条件的矛盾问题,总图的缺位也导致设计反复修改,影响项目工期。例如,地块出入口与公交站的位置关系难以在建筑设计阶段判断,加上建筑设计师重点关注建筑立面功能,容易忽略出入口与公交站点的关系。
目前有很多总图相关概念,如总平面图、场地总图、室外工程总图、民用总图、总图运输,还有一些衍生词,如修建性详细规划总图、地区总图、规划一张图、一张蓝图等,这些概念之间到底有什么区别与关联呢?
总平面图
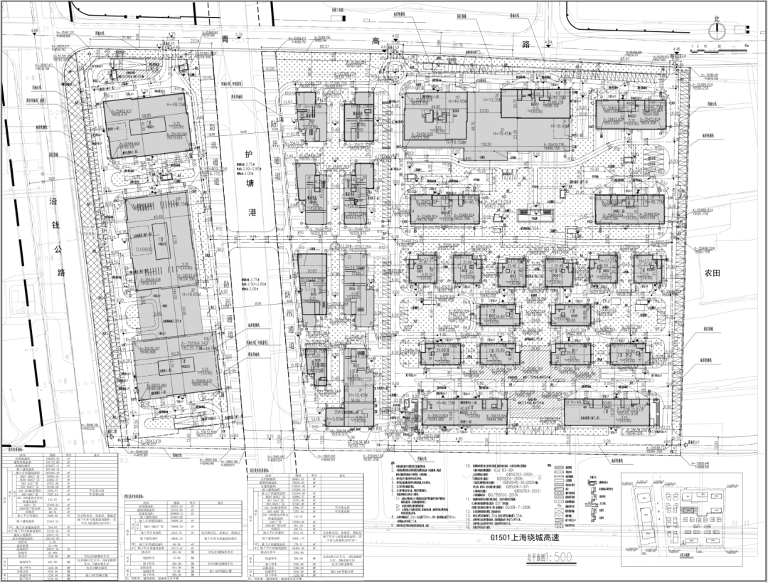
总平面图也叫总体布置图,《建筑工程设计文件编制深度规定》中对总平面图深度提出明确的要求,是在规定红线内的场地上,对一个建设项目的建筑物、构筑物、道路、各种场地、绿化设施等进行全面、合理的、协调的布置使之成为一个有机整体,有利于生产有利于生活。字面意思上理解,是各类设施的平面布局。常用在民用建筑建筑设计中,从方案到施工图阶段,比较偏重于功能流线组织。

图 1某项目总平面图
民用总图
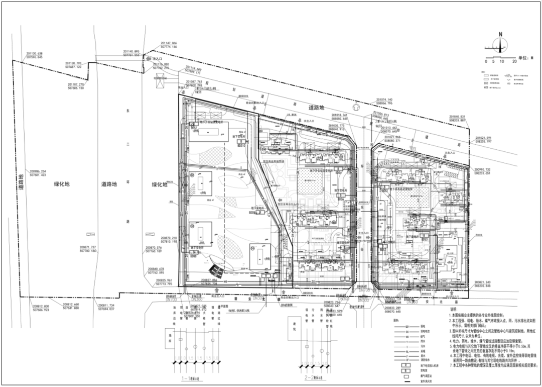
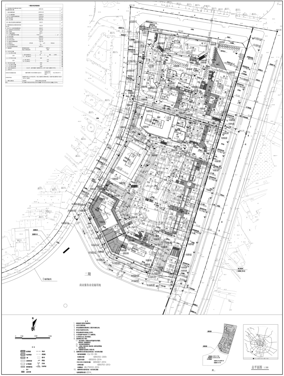
主要是民用建筑项目中,依据建设项目使用功能要求和规划设计条件,在基地内外现状条件和有关法律、规范基础上,处理各建构筑物、道路广场绿地及地下管线的平面及竖向关系。包括总平面图、竖向设计图、土方与挡土墙设计、管线综合图等。比较偏重于总体布局协调性、工程性、技术性。

图2某项目总平面图施工图

图 3某项目管线综合图
工业总图
工业总图,通常叫做总图运输设计,是根据建厂(场)地区地理、自然和环境等条件,按照工艺要求、物料流程以及有关工程建设标准,正确选定厂(场)址,合理确定工业(园)区及工业企业内,各种建构筑物、交通运输设施、综合管线的平面关系、竖向关系、空间关系及与生产活动的有机联系,系统地处理物流、人流、能源流和信息流,并且能对施工的前中后期进行立体化管理的综合性学科。是传统总图的专业叫法,常用在工业总图设计范畴,注重工艺流程与场地关系,工作内容和方法基本同民用总图。

图 4某项目总图施工图
场地设计总图
场地设计不单独分类别于某项设计,而是总图工程实践中包括了一些场地问题,场地设计是为了满足建设项目要求,在基地现状条件和相关法规、规范基础上,组织场地中各构成要素之间关系的设计活动。根本目的是通过设计使场地中的各要素,尤其是建筑物与其他要素之间能形成一个有机整体,以发挥效用,并使基地的利用能够达到最佳状态,充分发挥用地效益,节约土地,减少浪费。场地设计更重视对场地中各要素关系的组织,这种关系既包括功能关系,也包括空间、视觉、景观等方面的关系。场地设计的工作可以划分成为场地布局和场地详细设计两个阶段,具有更多的丰富性和细节性。


图5某项目场地设计总图及剖面图
室外工程设计总图
室外工程设计是对一个整体项目工程而言,是除建筑以外的其他工程设计,包括室外道路、绿化、安装、供水、供电、供气、排水、室外效果及其它使用功能,常规包含道路设计图、景观环境设计图及室外管线设计图。常用于建筑室外后期施工图工程设计,侧重于工程性和技术性。

图 6某项目室外工程景观设计
修建性详细规划总图
修建性详细规划是以城市总体规划、分区规划或控制性详细规划为依据,制订用以指导各项建筑和工程设施的设计和施工的规划设计,是城市详细规划的一种,规划对建设项目做出具体的安排和规划设计,并为下一层次建筑、园林和市政工程设计提供依据。其成果包含规划总平面图、竖向规划图、反应规划意图的透视图等,是规划范畴的内容。
图 7某项目规划总平面图
地区总图
地区总图首次出现在上海市规划和自然资源局发布的沪规划资源建【2021】252号文件中,《关于开展建设项目规划实施管理平台工作的指导意见(试行)》中提出,是为确保落实国土空间规划要求,以推动实施为导向,综合实施开发主体根据批准的控制性详细规划、部门管理要求、实施主体需求,组织专业服务团队编制地区总图。地区总图应符合控制性详细规划总体要求,可结合项目 策划、功能研究情况,对区域内基础性、公益性、公共性要 素进行统筹协调。 包括地上总平面图、地下总平面图等空间总图,也可包含市政配套管线、区域交通组织、项目运行维护等专项总图。

图 8某项目地区总图
规划一张图
自然资源部办公厅印发《关于开展国土空间规划“一张图”建设和现状评估工作的通知(行)》,再次明确:依托国土空间基础信息平台;全面开展国土空间规划“一张图”建设。建设完善省、市、县各级国土空间基础信息平台,以第三次全国国土调查成果为基础,整合国土空间规划编制所需的各类空间关联数据,形成坐标一致、边界吻合、上下贯通的一张底图,作为国土空间规划编制的工作基础。依托平台,以一张底图为基础,整合叠加各级各类国土空间规划成果,实现各类空间管控要素精准落地,形成覆盖全国、动态更新、权威统一的全国国土空间规划“一张图”,为统一国土空间用途管制、强化规划实施监督提供法定依据。

图 9规划一张图逻辑框架图
一张蓝图
习近平总书记两次视察北京并发表重要讲话,多次提出“一张蓝图干到底”的规划大目标,规划师始终牢记嘱托,推进构建“一张蓝图干到底”国土空间管理格局。一张蓝图表面看只是一张图,但背后却涉及复杂的技术和管理逻辑,包括不同部门、不同行业甚至不同阶段规划和管理事权的合一,做到同一空间、统一规划、统一管理,一切的规划要落到这一张蓝图,一切的管理事权也是基于这一张蓝图,只有这样才能避免空间规划冲突、规划管理打架。


图10 某项目一张蓝图和建设效果
这么多总图,傻傻分不清楚!!名称上形形色色,内容上大同小异,区别在于不同的阶段表达深度不同,关注重点也不同。以上所有的设计都归属于总图设计范畴,只是从事的角色不同,对总图的认知不同。
笔者看来,总图是一种思维,是从空间和时间层面解决建构筑物、道路广场、公园绿地及管线设施布局的思维方式;从规划到实施始终在同一张底图上,设计相互牵连,互为边界条件,动态调整的一种思维方式;一种范畴小到建筑日照间距,大到城市空间结构,由点到面的思维方式。总图是一种抓手,各个管理部门与开发主体通过总图实现管理职能,实施资源管理、专业管控,明确权责关系。通过总图构建多部门协调、项目审批与区域把控的底板。总图是一个平台,在规划全阶段过程中,多方利益主体对规划设计方案均具有纵向反馈效应,影响方案最终成果,需要通过总图协调多利益、多主体。通过总图构建时间与空间联系,形成动态化调整的平台。
总图在我国已有半个世纪发展历史。1956年我国从莫斯科建筑工程学院全盘引进了工业运输专业(总图设计与工业运输专业前身),设置在西安建筑科技大学(西冶院),这是中国第一个也是唯一一个科班出身的总图。国内各大建筑设计院也设有总图室,参与各类建筑项目的总图设计。
1、传统总图设计技术路径:
收集资料-分析规划设计条件-建筑指标计算-建筑布局-交通组织-竖向设计-管线综合
2、传统总图设计成果文件
从方案到初步设计到施工图阶段,不同阶段不同深度的成果文件,方案阶段通常是总平面图、竖向分析图、绿化分析图、消防分析图、管线分析图。以分析图为主;初步设计阶段主要对接不同的职能部门,梳理各个部门对地块的建设要求,成果主要是总平面图及设计说明,竖向设计及设计说明。施工图成果为总平面定位图、竖向设计图、道路设计图、管线综合设计图、土方计算及挡土墙节点设计图。
3、总图特点
纵观发展历程和实践成果,其专业特点凸显出以下几个方面:
边缘性:总图是在多学科的边缘产生的,因此它的专业知识范畴也处于众多学科的边缘。例如:城市规划、道路工程、工业工程、物流学、环境科学乃至社会学;至今传统建筑设计院总图设计仍是由建筑专业或城市规划专业人来主导。
开放性:总图人才除了由相应高校培养外,也向其他具备学科背景人员开放,各种背景人员都有机会基于各自专长从事总图工作,如不少设计单位总图人员是来自铁道工程、道桥、城市规划、测绘和风景园林等专业。没有严格的专业界限和固定模式体现了总图的开放性;
综合性:多方面人士的参与导致了学科专业的综合性,总图教育所需要培养的不是单一门类知识的专才,而是综合应用多学科专业知识的复合性才;
动态性:动态有两方面的含义:一方面指总图的学科体系在不断的发展完善之中:另一方面是指总图工作的设计模式,从方案到初步设计到施工图,总图是在不断地适应社会条件的变化而动态更新。
体系性:多学科知识关系统一在“总图设计与运输”这一总纲之下,不同的研究方向只是不同手段和角度。待完善的总图学科体系并不依赖于城市规划、工业工程,而有其完整独立的学科体系。
总图是从规划一张图延续到实施的一张蓝图,在规划一张图底图下,由各类开发建筑总图、道路交通总图和市政管线总图组装而成,并伴随着各类总图之间不断产生矛盾,进而解决的过程,从规划蓝图到施工蓝图最后到竣工总图,随着城市的发展不断生长的一张总图,更补充了规划一张蓝图干到底的全生命周期的特点。
任何事物发展都逃不过五个阶段:初创、探索、发展、矛盾和变革,目前总图更是面临突破性革新。
1、总图变革面临以下五个转变
(1)专项总图到全维总图
纵观城市建设范畴,其工作对象已经不仅仅局限于工业企业总图运输设计,它已经扩大到民用建筑、市政工程、景观园林和交通运输等城市工程建设的各个方面,这是总图逐步走向完善的标志,是专业发展的进步表现。总图发展凸显出多元化、全维度的趋势。
(2)设计工作到协调工作
越来越多的片区综合开发项目,基于规划目标,越来越多复杂的条件叠加,包括轨道交通、综合管廊、二层连廊、地下连通道。对于地块红线范围外的建筑主体(连廊、连通道)的建设标准及宽度、标高等需要第三方设计进行统筹和平衡,需要站在城市角度,利用总图拍图的方法来进行技术协调。而城市总图就是在满足控规和规划设计条件,根据建设场地的周边条件等综合要求,合理协调布置建、构筑物、交通道路、绿化、水系、轨道交通、综合管廊管线等设施,充分解决好他们之间的矛盾,使之达到功能与效果的完美统一。从具体的设计工作内容逐步转变到多要素、多边界、多主体、多部门的协调工作。

图 11某项目地下一层平面图
(3)传统竖向到城市竖向
传统竖向以地块为计算单元,满足地块内土方开发平衡,解决地块内场地排水、交通联系等,而城市竖向面临更多复杂的条件,地块成为城市的计算单元,区域海绵指标、区域汇水分区划分,区域土方开挖、及立体城市轨道交通、综合管廊等都会成为竖向设计影响因素,平面竖向方法已经不能解决立体城市建设中出现的错综复杂的节点问题,我们要清楚掌握立体城市各项要素开发时序、及技术条件,通过城市剖面协调各要素间的上下竖向关系。


图 12某项目场地剖面图
(4)红线内总图到红线内外一体化总图
市政道路设计和开发项目设计是各自进行,建成后彼此间的区分也非常明显。道路由人行步道、自行车道、绿化带、机动车道几部分组成。道路两侧是商业空间。一样是路面,市政道路铺的是柏油,跨过道路红线,转换到商业步行空间就变成了石材,界线分明,风格迥异。随着对城市建设品质要求越来越高,这条有形的红线逐步被取消,通过城市总图中公共空间统一设计的方式,建筑前区和人行空间红线内外一体化设计,淡化了传统市政道路与商业空间之间的界线,营造风格统一、减少割裂感、营造更高品质街区空间。

图13上海市大学路实景照片
(5)总图成果到总图思维
总图设计不仅仅局限于总平面图、竖向设计图、管线设计图等成果,而更多的是利用总图思维在性协调各个专业之间的矛盾、平衡政府与市政市场的利益;利用总图思维看城市,不仅仅看到城市中盘绕在各个摩天大楼之间的慢行廊道,更要看到廊道下方禁止布置消防登高场地;不仅仅看到城市光鲜亮丽的建筑立面,更要看到隐藏在地下错综复杂的市政管线与地下管廊;用总图思维看城市,设计师描绘的城市蓝图才能落地建成。
2、总图思维下的三个原则
(1)目标导向。科学评估上位规划对片区要求,梳理片区目标,要体现规划目标,区域统一建设的高品质要求,坚守生态安全、水安全、综合防灾安全、等底线要求,反映区域特色目标;以及规划动态调整完善提供参考。
(2)问题导向。着力发现规划实施中存在的平面维度“互为边界”的问题,空间维度“竖向矛盾”、时间维度“时序不相匹配”问题、政策维度“突破规范”等突出矛盾和问题,及时预警,以人为本,从结构、品质、效率、时序等多角度充分挖掘最优、最经济、最平衡的点,提出针对性解决措施,促进规划更好编制实施。
(3)操作导向。结合上位规划要求,统筹兼顾,构建科学有效、便于操作、符合城市或片区特质的城市总图,实现区域指标统筹、指标平衡等;采用客观真实的数据及可靠分析方法,确保技术协调过程科学严谨。
3、总图思维下一张图技术路径
国土空间规划的一张图是“一张现状底图”+“一张规划蓝图”+“一张管理用图”,总图是在国土空间规划体系下,以详细规划为底图,展开叠合和协调的工作,采用总图思维,不仅仅在立体三维空间内进行统筹,更要增加时间维度,熟知建设时序在项目之间相互牵制,更好的编制总图。

总图是载体,是规划蓝图落地的载体,是城市信息数据的载体,是城市全生命周期信息的载体。构建城市总图,针对重要控制线和重点区域开发,实现及时预警、动态维护、精细化管理功能,支撑综合开发主体及二级开发主体高效开发,辅助管理者精准决策。
及时预警。通过总图的编制,规划底图进而叠合各类总图,建立项目信息库,实现建设清单化;梳理资源信息,实现信息清单化;对关注事项预警,实现问题清单化;
动态维护。通过总图的编制,实时采集接入多源数据,在开发不同阶段,分层分级分类梳理拍图内容,对区域内开发利用行为进行长期动态维护,加强对各类开发边界、约束性条件的重点监测。
精细化管理。通过总图的编制,实现管理目标量化、管理标准细化等。不仅为综合开发平台及实施主体提供了详实的电子数据信息,更为管理部门规划一张图系统提供精准的数据支撑。为各方精细化管控与管理提供了有效路径。
总图建立了城乡规划阶段的“底图”思维。利用总图技术逻辑,构建对规划体系全面改革后的“一张图”建设具有重要实施意义。总图是贯穿整个国土空间规划编制至建设完成的载体,综合开发主体及开发实施平台通过总图,实现政府和市场的“对话”,最大程度上均衡统筹公共利益和市场诉求。总图成为解决城市复杂空间问题的手段,在高密度中心城区、TOD等区域,城市更新、双碳等方面必将发挥更大作用。
0人已收藏
0人已打赏
免费2人已点赞
分享
建筑方案设计
返回版块21.09 万条内容 · 292 人订阅
阅读下一篇
建筑总平面图设计-概述一、总平面图概念 假设在建设区上空向下投影所得的水平投影图。反应新建建筑相关信息以及周围的总体情况。是设计和施工的依据。 二、常用规范、图集 查《现行建筑设计规范大全》规范有没有相应的规定,需常翻常看 1. 制图规范: ★建筑工程设计文件编制深度规定(2016年11月) ★总图制图标准GB/T50103-2010 2. 设计规范: ★全国民用建筑工程设计技术措施(规划、建筑、景观)
回帖成功
经验值 +10
全部回复(0 )
只看楼主 我来说两句抢沙发