土木在线论坛 \ 建筑结构 \ 混凝土结构 \ 剪力墙结构设计的应用

剪力墙结构设计的应用

发布于:2024-03-21 13:22:21 来自:建筑结构/混凝土结构 [复制转发]

在建筑结构的设计中,剪力墙结构又正是以其自身突出鲜明的优势和特点成为了多层或者是高层混凝土建筑中的必然选择。剪力墙的优势就体现在其具有较大的抗侧刚度,在建筑结构中能够较好的减少侧边位移,除此之外还具有较好的抗震作用,正是因为这样才促成了剪力墙在建筑工程中的广泛应用。

图片

固定布局

工具条上设置固定宽高,

背景可以设置被包含,
可以完美对齐背景图和文字,

以及用于模板制作。

固定布局

工具条上设置固定宽高,

背景可以设置被包含,
可以完美对齐背景图和文字,

以及用于模板制作。

图片

01

什么是剪力墙结构设计?

图片

剪力墙高和宽尺寸都比较大,但是其厚度却非常小,这就决定了剪力墙的几何特征和受力形态。其几何特征类似于板,但是受力形态却和柱子惊人的相似,但是在比值上与柱子有着一定的区别。

图片

在剪力墙的结构中,墙是一个平面结构,它承受着竖向压力和其平面作用下的水平剪力的双重力量。地震作用和风载下剪力墙仅仅满足刚度强度是远远不够的,其还必须满足非弹性变形反复循环下的延性和能量消耗和控制结构断裂却不倒的要求。所以,在剪力墙的设计中要求将其设计成延性弯曲型。

图片



图片

固定布局

工具条上设置固定宽高,

背景可以设置被包含,
可以完美对齐背景图和文字,

以及用于模板制作。

固定布局

工具条上设置固定宽高,

背景可以设置被包含,
可以完美对齐背景图和文字,

以及用于模板制作。

图片

02

图片

剪力墙的结构设置

图片

采用剪力墙结构建造高层建筑时,对空间的要求比较高,这就要求剪力墙双向分布组成一定的空间结构,并减小两个方向上的刚度差异且分布均匀,同时减小刚度中心与建筑物中心的水平位移,可使得剪力墙整个结构的扭转效应减弱。因为剪力墙结构的水平地震作用力较大、自振周期较短,对结构本身的稳定性会有不好的影响,所以应尽量减小纵横墙体的厚度,也可采取主次结构体系增大墙体间的间距,来减弱剪力墙墙肢的水平地震剪力和整体弯矩,结构本身的抗侧移刚度和结构自重也随之减小。

图片

剪力墙有较大洞口时,洞口位置应上下对齐;剪力墙在平面位置上应力求均匀、对称;剪力墙的中心线与框架柱中心相重合,任何情况下剪力墙轴线偏离框架中心线的距离,不宜大于柱子宽度的1/4。房屋底部有框支层时,落地剪力墙的数量不宜少于上部剪力墙数量的50%。剪力墙之间无大洞口的楼、屋盖的长宽比,应符合抗震的规定,否则应考虑楼板平面内变形的影响。

图片


图片

固定布局

工具条上设置固定宽高,

背景可以设置被包含,
可以完美对齐背景图和文字,

以及用于模板制作。

固定布局

工具条上设置固定宽高,

背景可以设置被包含,
可以完美对齐背景图和文字,

以及用于模板制作。

图片

03

图片

项目介绍应用

图片

我们荣廷府项目的就是采用剪力墙施工工艺,下面来了解一下我们的项目情况以及它的结构厚度和应用吧

图片

它位于广州越秀区东华西路以南,东豪涌永胜西以东地段。由1栋31层,1栋20层住宅楼组成。裙楼6层,地下室3层,总建筑面积为37754平方米,其中地上建筑面积为27515平方米,地下建筑面积为10239平方米。根据项目位于广州东山老城区的地理位置特点,岭南文化底蕴深厚,所以强调符号形态加强对历史的记忆,整体造型以现代的设计手法来诠释岭南风格的特点。

图片
图片

固定布局

工具条上设置固定宽高,

背景可以设置被包含,
可以完美对齐背景图和文字,

以及用于模板制作。

固定布局

工具条上设置固定宽高,

背景可以设置被包含,
可以完美对齐背景图和文字,

以及用于模板制作。

图片

04

图片

剪力墙结构的厚度和长度的选取

图片

剪力墙长度和宽的尺寸比较大,但是其厚度却比较小。根据其设计的长度和厚度的比值可以将其按照柱形和双向受压构件设计。

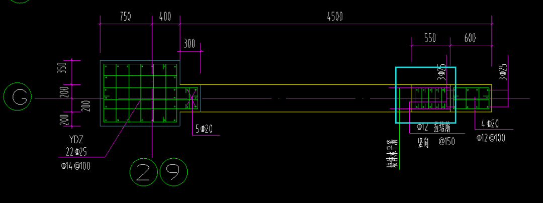
抗震规范条有明确规定,剪力墙底部加强墙厚一、二级抗震等级时最好大于200mm,而且不得小于楼层高度的1/16,其它地方的则不得小于160mm。在剪力墙结构设计中,遇到特殊情况的建筑物应该采取概念设计分析,有效控制墙肢轴压的比值,确保整体的连结从而达到减少墙的厚度的效果。

图片

墙肢的长度 ,剪力墙墙肢截面的高度就是剪力墙墙肢的长度,这个长度一般不应超过8m。在剪力墙结构设计中应确保剪力墙结构的延性,为了避免脆性的剪切破坏,可将高宽比大于2的细高剪力墙设计成弯曲破坏的延性剪力墙。但是有的墙体长度很长,为了确保墙体的高宽比值大于2,就要采取开设洞口的方法将长墙分成均匀的、长度较小的连肢墙,而其洞口则最好采用约束弯矩比较小的弱连梁。

图片
图片

固定布局

工具条上设置固定宽高,

背景可以设置被包含,
可以完美对齐背景图和文字,

以及用于模板制作。

固定布局

工具条上设置固定宽高,

背景可以设置被包含,
可以完美对齐背景图和文字,

以及用于模板制作。

图片

05

图片

剪力墙结构应用分析

图片

剪力墙墙肢的处理,对于高宽比小于3的剪力墙结构,进行结构设计时必须使其具有较好的延性,结构在发生脆性破坏时会导致整个结构的破坏。当墙肢长度很长时,可使用开洞的方式均匀分解长墙,使得各个墙段的高跨比大于3,与此同时,墙段受弯时产生的裂缝也相对较小,提高了墙体配筋的作用程度。在剪力墙结构中,当墙肢长度超过8m时,楼层中的剪力将主要由大墙肢承受,剧烈震动发生时这些大墙肢将最先受到破坏,又因小墙肢配筋率较小,会使整个墙面结构遭到破坏。这种情况下应采取计算洞和开施工洞的方式解决,计算洞做法就是在设计计算时有洞口存在,实际施工时以混凝土墙代替,可增强小墙肢的配筋能力;开施工洞做法就是在施工时预留洞口,施工末期将那些预留洞口填满,就把长墙肢分解为短墙肢。

图片


总之,在对剪力墙结构设计进行有效分析的过程中,我们应重视其基本概念的设计,认真把握设计中遵循的各项原则,合理选用有效的长度和宽度,使设计达到最佳的效果。只有这样才能保证建筑结构经济安全,有效降低工程成本,促进整个工程建设的持续稳定发展。

这期的工艺分享就到这里了,敬请期待我们下一期的分享吧!

免责申明:图片、文案来源于网络,仅分享使用,如有侵权联系删除

全部回复(0 )

只看楼主 我来说两句抢沙发
这个家伙什么也没有留下。。。

混凝土结构

返回版块

140.16 万条内容 · 2194 人订阅

猜你喜欢

阅读下一篇

一栋超高层剪力墙结构的设计流程(1)

概况 本项目是一栋软土地区的超高层建筑,使用功能为酒店公寓(首层商业),全楼设置有两个避难层,建筑总高度149米(不含装饰架及机房层)。8度0.2g,IV类场地,建筑方案如下:  

回帖成功

经验值 +10