一、国内建筑同层排水应用现状
华东院曾在2004年和2011年分别对国内同层排水应用情况进行过函调,结果显示:

国内同层排水以降板的管道沿地面敷设方式为主。
应用现状

三种卫生间排水方式的图示对比,异层排水和降板同层排水存在很多问题。
二、降板式建筑同层排水的不足
1、地面渗漏是地面敷设式使用中存在的主要问题,其次是检修困难和地漏返味。




地面渗漏造成沉箱积水现象


不常使用地漏水封失效,易返味


存水弯处易堵塞不易清通,检修需要敲掉楼板
2、地漏设置困难是沿墙敷设式的主要问题,其次是造价高和平面视觉空间较小。


地漏设置困难(且必须要小降板)


降板卫生间回填采用建筑垃圾,不按要求回填陶粒
三、不降板同层排水解决的主要问题
1、彻底解决层高问题


2、解决地面渗漏、沉箱积水问题

3、大幅降低综合造价
1)防水成本
传统降板同层排水需要在回填前和回填后共做两次防水,而不降板同层排水只需做一次防水,以降350mm、6m2卫生间计,节省造价约900元。
2)回填材料成本
传统降板同层排水需用陶粒混凝土填充降层区域,以降350mm、6m2卫生间计,节省造价约1100元。
3)模板/钢筋成本
传统降板同层排水需在四周侧向支模,以降350mm、6m2卫生间计,需增加造价约600元,传统降板同层排水在回填层上方需做钢筋混凝土层(40mm),节省造价约900元。


4、提高排水安全性、排水通畅性,易清通检修



目前,降板同层排水下设存水弯的地漏清通不便,需要借助机械工具甚至破坏地板。

采用排水汇集器的同层排水系统,共用水封是唯一可能产生堵塞的地方,可以很方便的进行清通检修。
5、解决地漏设置困难的问题



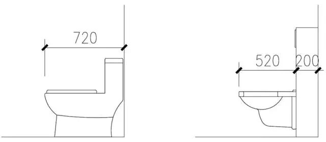
坐便器占用长度空间

0人已收藏
0人已打赏
免费0人已点赞
分享
建筑消防给水
返回版块28.39 万条内容 · 739 人订阅
阅读下一篇
现场测试消火栓看反应,国务院安委办暗访企业曝光安全隐患“你现在试试消火栓能不能出水?” “昨天网管漏水,我联系了维修公司还没来。” “水的问题是你们厂现在最大的问题,当地消防救援部门会对你们采取执法措施,请你们高度重视消防安全。” 这是国务院安委办明查暗访组近日在福建长乐暗访的一幕。近期,国务院安委办派出8个工作组赴16省份,聚焦矿山、消防、危险化学品、工贸、燃气等重点行业领域开展安全生产明查暗访,南都记者随国务院安委办第三明查暗访组至福建,重点摸排纺织企业消防隐患。
回帖成功
经验值 +10
全部回复(1 )
只看楼主 我来说两句 抢板凳造价是最主要的。微降板系统的连接管件价格肯定低不了。
回复 举报